/
로그인
/
즐겨찾기
회사소개
주요업무
국제/국내운송
갤러리
주요운송실적
견적문의
대형조형물 및 조각품 옥외설치
미술품 포장 및 운송
미술품 국제 운송 및 설치
부스운영서비스
미술품보관
장비보유 현황
제목
작품운송 및 설치 견적문의
2025-04-23 13:07:55
작성인
박희진
전화번호 : 비공개 이메일 :
조회 : 129 추천: 26
첨부파일 :
1745381274-93.jpg
첨부파일 :
1745381274-33.jpg
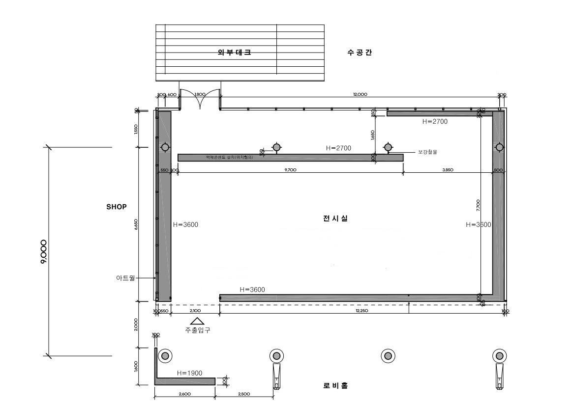
안녕하세요!
작품 운송과 설치 견적 문의드려요
위치는 고양시 덕양구에서 이동해서 안산시 단원구,
전시가 끝나면 다시 안산에서 고양까지 입니다
첨부파일 전시전경은 지난번에 했던 개인전이고 도면은 안산에 위치한 갤러리 도면이에요
참고하셔서 견적 부탁드립니다!
패스워드
패스워드를 입력하세요.
도배방지키
4
7
1
2
5
2
4
5
보이는 도배방지키를 입력하세요.
번호
첨부
제목
글쓴이
등록일
추천
작품운송 배송과정 안내드립니다
관리자
2024-05-28
65
전시화물 작품운송
전시화물
쪽지보내기
등록업체보기
회원정보보기
게시글보기
전체게시글보기
2022-04-19
85
528
제주 부산 왕복 운송 문의
상상마당부산
2026-01-28
1
527
답변 : 제주 부산 왕복 운송 문의
작품운송
2026-01-28
1
526
해외운송문의
ej
2025-11-14
6
525
답변 : 해외운송문의
관리자
2025-11-14
7
524
서울에서 제주도까지 작품배송건 가격...
김용성
2025-11-12
8
523
답변 : 서울에서 제주도까지 작품배송건 가격...
관리자
2025-11-12
4
522
도자기 포장 견적요청드립니다
도자기 운송
2025-09-04
19
521
답변 : 도자기 포장 견적요청드립니다...
관리자
2025-09-04
18
520
해외운송 개인전
park
2025-09-02
18
519
답변 : 해외운송 개인전
전시화물
쪽지보내기
등록업체보기
회원정보보기
게시글보기
전체게시글보기
2025-09-02
8
518
미술품 국내 운송&설치
danmugi87
쪽지보내기
등록업체보기
회원정보보기
게시글보기
전체게시글보기
2025-08-02
24
517
답변 : 미술품 국내 운송&설치
전시화물
쪽지보내기
등록업체보기
회원정보보기
게시글보기
전체게시글보기
2025-08-04
19
516
작품 포장 문의드립니다.
[1]
주예빈
2025-07-29
27
515
답변 : 작품 포장 문의드립니다.
전시화물
쪽지보내기
등록업체보기
회원정보보기
게시글보기
전체게시글보기
2025-07-30
4
514
프랑스 국제운송 후기
관리자
2025-07-23
24
513
운송 견적 문의
BRC
2025-07-22
28
512
답변 : 운송 견적 문의
관리자
2025-07-22
19
511
미국으로 작품운송 견적 문의합니다. ...
김용주
2025-07-21
22
510
답변 : 미국으로 작품운송 견적 문의합니다. ...
관리자
2025-07-21
20
509
제주 서울 운송 문의 드립니다.
김상균
2025-07-18
20
1
2
3
4
5
6
7